190013, Санкт-Петербург,
ул. Рузовская, 16,лит.А пом. 8Н, офис 218
Россия
тел.: +7 812 640-65-50
  +7 812 640-65-60
  +7 812 640-65-70
E-mail: vtl@vtl.spb.ru
   
   
   
 
 
 
 
© 2011-2015 Внештранслогистик-Проект
Создание сайта Трясорукова Татьяна
 
 
 
 
ВНЕШТРАНСЛОГИСТИК-ПРОЕКТ
20 лет на рынке перевозок
проектного негабаритного
оборудования

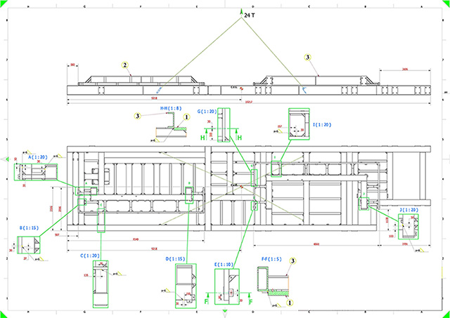
Delivery of 1 pc, 4500 mm. width from Poland to Netherlands.

Specialists of the forwarding company VTL-Project LLC. organized complex delivery of 1 oversized piece Poland to Netherlands.

Equipment in amount of 1 pc with dimensions:
19217 x 4500 x 1000 mm. 24 000 kgs
was delivered "door-to-door" from Poland to Netherlands.
Goods were transported by truck.

Time for PL/DE/NL permits and preparation for transport - less then 2 weeks.
Вернуться к новостям
Газохимическое и топливно-энергетическое оборудование
Промышленное оборудование